Typ1

Konstruktionsfläche: 56,41 m²
Nutzfläche: 43,00 m² + 10,71 m²= 53,71 m²


 

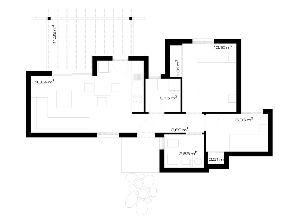
Typ2


Konstruktionsfläche: 60,84 m²
Nutzfläche: 47,24 m² + 11,39 m² = 58,63 m²


 

Typ3


Konstruktionsfläche: 92,20 m²
Nutzfläche: 74,73 m² + 14,59 m² = 89,32 m²


 

Share & Follow